Skip To Content

204 Leonard Way

Fate, TX 75087
  • $499,900
  • STATUS: Active
  • ON SITE: 79 Days
  • MLS #: 21119498
$499,900
  • 5
    BEDS
  • 0.22
    ACRES
  • 3
    BATHS
  • 1
    1/2 BATHS
  • 3,339
    SQFT
  • $150
    $/SQFT
Neighborhood:
Type:
Single-Family Home
Built:
2008
County:
Area:

School Information

Elementary School:
High School:
School District:
Offered by Wendy Parker of Premier Legacy Real Estate LLC: 972-977-4926.

Description

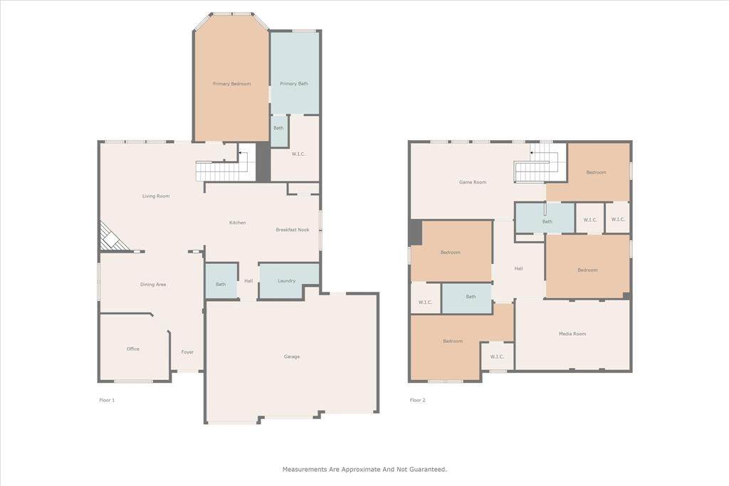
PRICE REDUCED & SELLER IS OFFERING up to $15,000 toward buyer closing costs or an interest rate buy-down! Located in the award-winning ROCKWALL ISD, this beautifully updated 5-bedroom, 3.5-bath home with a 3-car garage sits on a spacious corner lot, just one block from Billie Stevenson Elementary.Step inside to an open-concept layout with luxury vinyl flooring (installed May 2025), a private office, formal dining, and a cozy living room with fireplace. The kitchen showcases granite counters, gas range, island, breakfast bar, pantry, abundant cabinetry, and a dishwasher (replaced 2024).The downstairs primary suite features a sitting area, dual sinks, garden tub, oversized walk-in shower, and large walk-in closet. Upstairs offers 4 bedrooms, a game room, media room, and study nook—perfect for work or play. Updates include: roof replaced (May 2025, transferable warranty), carpet upstairs (Sept 2025), and freshly landscaped front flower bed (Sept 2025).Enjoy a private backyard oasis with a saltwater pool (2021) with a deep end of approximately 7 feet, 8’ privacy fence, covered patio, storage shed, and pool equipment enclosed for UV protection. Located in the City of Fate and Rockwall ISD! PRICE REDUCED & SELLER IS OFFERING $15,000 IN CLOSING COST OR FOR A RATE BUY DOWN!

Monthly Payment Calculator



© 2026 North Texas Real Estate Information Systems. All rights reserved. IDX information is provided exclusively for consumers' personal, non-commercial use and may not be used for any purpose other than to identify prospective properties consumers may be interested in purchasing. Information is deemed reliable but is not guaranteed accurate by the MLS or Real Estate By Design | Keller Williams. The data relating to real estate for sale or lease on this web site comes in part from NTREIS. Real estate listings held by brokerage firms other than Real Estate By Design | Keller Williams are marked with the NTREIS logo or an abbreviated logo and detailed information about them includes the name of the listing broker. Data last updated 2026-02-15T23:42:04.29.
www.rebdgroup.com/homes/170951327
Print Image

204 Leonard Way Fate, TX 75087

  • Price: $499,900
  • Status: Active
  • On Site: 79 Days
  • MLS #: 21119498
5
Beds
3
Baths
1
½ Baths
0.22
Acres
3,339
SQFT
$150
$/SQFT
2008
Built
Neighborhood:
Woodcreek Ph 1a
County:
Rockwall
Area:
Fate
Elementary School:
Billie Stevenson
High School:
Rockwall
School District:
ROCKWALL ISD
Property Description
PRICE REDUCED & SELLER IS OFFERING up to $15,000 toward buyer closing costs or an interest rate buy-down! Located in the award-winning ROCKWALL ISD, this beautifully updated 5-bedroom, 3.5-bath home with a 3-car garage sits on a spacious corner lot, just one block from Billie Stevenson Elementary.Step inside to an open-concept layout with luxury vinyl flooring (installed May 2025), a private office, formal dining, and a cozy living room with fireplace. The kitchen showcases granite counters, gas range, island, breakfast bar, pantry, abundant cabinetry, and a dishwasher (replaced 2024).The downstairs primary suite features a sitting area, dual sinks, garden tub, oversized walk-in shower, and large walk-in closet. Upstairs offers 4 bedrooms, a game room, media room, and study nook—perfect for work or play. Updates include: roof replaced (May 2025, transferable warranty), carpet upstairs (Sept 2025), and freshly landscaped front flower bed (Sept 2025).Enjoy a private backyard oasis with a saltwater pool (2021) with a deep end of approximately 7 feet, 8’ privacy fence, covered patio, storage shed, and pool equipment enclosed for UV protection. Located in the City of Fate and Rockwall ISD! PRICE REDUCED & SELLER IS OFFERING $15,000 IN CLOSING COST OR FOR A RATE BUY DOWN!
Exterior Features

Backyard Pool Features FencedPool/Spa ComboSalt WaterWater FeatureWaterfall Carport Spaces 0 Construction BrickSidingStone Veneer Covered Spaces 3 Exterior Features Covered Patio/PorchRain GuttersLightingStorage Fencing FencedPrivacyWood Foundation Slab Housing Type Single Detached Lot Description Corner LotFew TreesLandscapedSprinkler SystemSubdivision Lot Dimensions 80X120 Lot Size Source Assessor Parking Or Garage Garage Door OpenerGarage Faces Front Pool On Property Yes Roof Composition Style Traditional Waterfront YN No

Interior Features

Appliances DishwasherDisposalGas RangeGas Water HeaterMicrowavePlumbed For Gas in KitchenWater Filter Attached Garage Yes Basement No Cooling Ceiling Fan(s)Central Air Dining Areas 2 Fireplace Features Gas Logs Fireplaces 1 Flooring CarpetLuxury Vinyl PlankTile Garage Yes Garage Length 22 Garage Width 30 Handicap YN No Heating CentralFireplace(s)Natural Gas Interior Features Granite CountersHigh Speed Internet AvailableKitchen IslandOpen FloorplanPantrySound System WiringWalk-In Closet(s) Living Areas 3

Property Features

Accessory Unit YN No Alarm Or Security Type Carbon Monoxide Detector(s)Security System OwnedSmoke Detector(s) Construction Status Preowned HOA Mandatory Hoa Billing Freq Annually Hoa Dues 780 Hoa Includes Full Use of Facilities HOAManagement Company Woodcreek Hoa HOAManagement Company Phone 000-000-0000 Horse Permitted No Levels Two Listing Terms CashConventionalFHAVA Loan Municipal Utility District Yes Other Structures Shed(s)Other Planned Development Woodcreek Ph 1a Possession Negotiable Property Attached No Property Type Single Family Residence Restrictions Deed Senior Community No Utilities CurbsIndividual Gas MeterIndividual Water MeterMUD SewerMUD Water Will Subdivide No

North Texas Real Estate Information Systems MLS logo Listing information © 2026 North Texas Real Estate Information System.


© 2026 North Texas Real Estate Information Systems. All rights reserved. IDX information is provided exclusively for consumers' personal, non-commercial use and may not be used for any purpose other than to identify prospective properties consumers may be interested in purchasing. Information is deemed reliable but is not guaranteed accurate by the MLS or Real Estate By Design | Keller Williams. The data relating to real estate for sale or lease on this web site comes in part from NTREIS. Real estate listings held by brokerage firms other than Real Estate By Design | Keller Williams are marked with the NTREIS logo or an abbreviated logo and detailed information about them includes the name of the listing broker. Data last updated 2026-02-15T23:42:04.29.
 
https://bt-photos.global.ssl.fastly.net/ntreis/orig_boomver_4_21119498-2.jpg https://bt-photos.global.ssl.fastly.net/ntreis/orig_boomver_4_21119498-2.jpg https://bt-photos.global.ssl.fastly.net/ntreis/orig_boomver_4_21119498-2.jpg
Logo
Real Estate By Design | Keller Williams
2434 Lillian Miller Pkwy
Denton TX, 76205
Offered by Wendy Parker of Premier Legacy Real Estate LLC: 972-977-4926.